汽轮机的停机维护知识分享
2022-11-30 科威
高压阀门法兰紧固采用哪种方式更可靠?
2022-11-29 科威
M90螺栓拧紧用哪个液压扳手用型号?
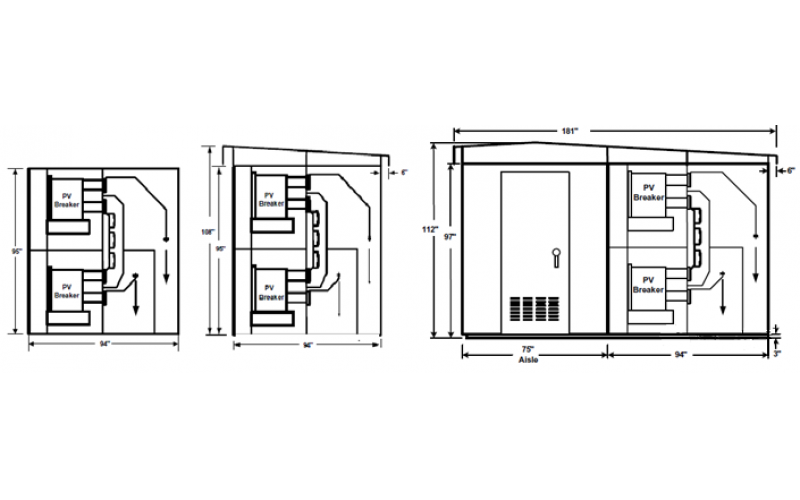
户外环网柜知识介绍分享
电感式接近开关的原理及使用分享
2022-11-28 科威
IEEE标准真空断路器要求
IEEE标准中压开关柜要求
KWZK-GM系列安全光幕的应用简介
2022-11-25 科威